 |
 |
|
 |
 |
南通佳德绿冶金设备制造有限公司
地 址:启东市惠和镇曙升村工业园
邮 箱:2650702013@qq.com
电 话:0513-83348100
0513-83731598
传 真:0513-83257800
手 机:13101996400
13862998500 |
|
 |
|
| |
TRWYQZ-*/*-B型油气供应站 |
| 一、结构特点及应用范围 |
| TRWYQZ-*/*-B型油供应站,是集润滑油液储存、增压过滤蓄能供送和PLC电气控制于一体的机电仪一体产品,适用于单线-多区式油气润滑系统中。 |
| 二、性能参数 |
型 号 |
公称压力 |
油箱容积 |
电加热器功率 |
空气压力 |
TRWYQZ-*/*-B |
10MPa |
500L |
4kW |
0.4~0.6MPa |
|
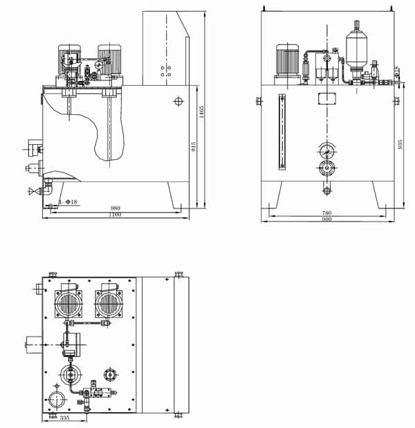
| 三、外形图 |
|
| 四、型号说明 |
|
| 五、原理图 |
|
| 六、功能说明 |
该站主要由油箱(带电加热器、液位计、电接点温度计、空气滤清器、液位控制器)、两台高压油泵装置(一备一用)、溢流阀、二位二通电磁阀、蓄能器、压力控制器、过滤器、单向阀、压力表等和PLC电气控制箱组成。在电动机的牵引下油泵工作,从油箱内吸入润滑油加压排出,途径单向阀、过滤器、蓄能器后向系统主管线供送。
正常工作时,一台高压油泵常开工作,另一台备用,可通过电气转换开关来交替使用,并可通过按钮开关人工启动和停止油泵,PLC电气控制箱对油气系统实行程序化全自动控制,还可向主控室提供系统“运行”、“停止”、“故障”等远程信号接口。 |
| 七、使用要领 |
1、油供应站应安装在灰尘少、振动小、通风干燥、环境温度适中,且便于调整、检查、维护和方便补油的地方。
2、油泵电机的旋向是单向的,使用时必须按电机外的旋向牌规定的旋向接线使用。
3、油箱油位低时应及时从空气滤清器的过滤网口处加入同牌号的润滑油,油位到达低油位时电气连锁油泵不能启动,严禁人工在无油或低位以下时启动油泵工作。
4、油供应站正常环境情况下工作,油箱电加热一般不投入使用,只有在冬季北方地区气温偏低情况下,为适当降低油的粘度才启动电加热对箱内油液进行加热。
5、油过滤器差压信号报警时,维护人员应及时清洗或更换滤芯。
6、油泵出口处的安全调压阀,无故不允许调节,决不允许调高至公称压力值以上使用。
7、PLC电气控制箱经调试工作正常后,无故不许随意修改或调整程序。 |
|
|
|
|