 |
 |
|
 |
 |
南通佳德绿冶金设备制造有限公司
地 址:启东市惠和镇曙升村工业园
邮 箱:2650702013@qq.com
电 话:0513-83348100
0513-83731598
传 真:0513-83257800
手 机:13101996400
13862998500 |
|
 |
|
| |
XYHZ型稀油润滑装置(0.5MPa)
|
| |
|
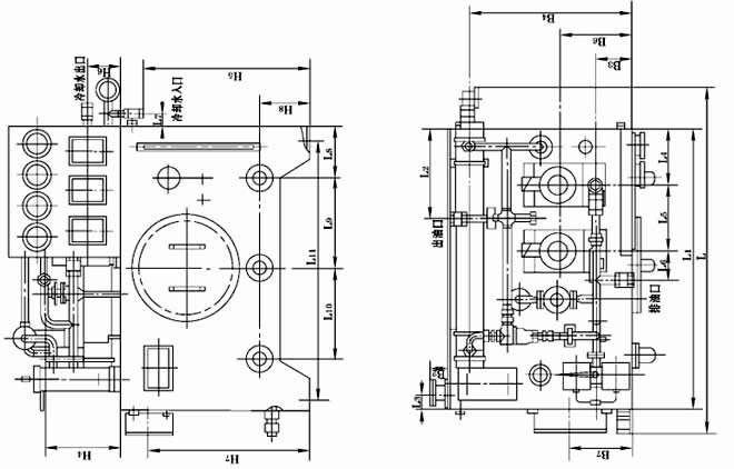
四、电控箱外形尺寸
|
|
图5 XYHZ6.3~XYHZ200装置电控箱 图6 XYHZ250~XYHZ800装置电控箱 |
| |
五、装置外形尺寸 |
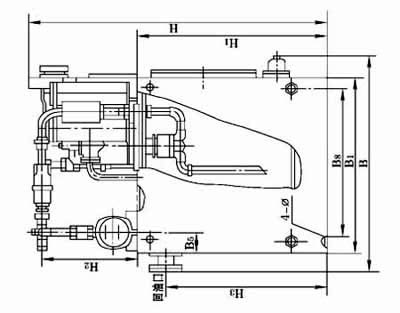
1.XYHZ6.3~XYHZ25的装置形式与尺寸见图7和表3;
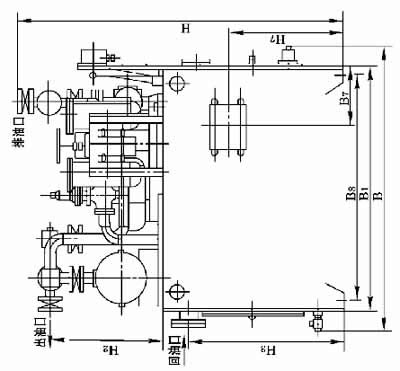
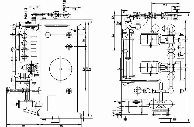
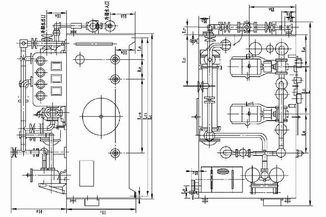
2.XYHZ40~XYHZ125的装置形式与尺寸见图8和表4;
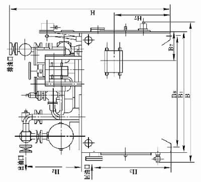
3.XYHZ160~XYHZ800的装置形式与尺寸见图9和表5;
4.图7、8、9中进出口法兰尺寸见图10和表6、7; |
|
|
图7 XYHZ6.3~XYHZ25装置 |
| |
|
|
图8 XYHZ40~XYHZ125装置 |
| |
|
|
图9 XYHZ160~XYHZ800装置 |
| |
| |
| |
| |
|
| |
|
|
|
|
|