一、使用条件
适用于公称压力为20MPa的双线式集中润滑系统作为一种计量给油装置,它在两条供油管交替的供油压力作用下,直接由供油压力推动活塞给油,完成向各润滑点定量分配润滑脂的功能。
SDPQ-L系列单向出油分配器给油口都在底部,分配器活塞正反向动作均从同一个给油口排油,系统每工作一次,各给油口均排油一次。
SSPQ-L系列双向出油分配器正面和底部均有给油口,分配器活塞正反向动作分别从正面和底部的给油口排出润滑脂。相对于SDPQ 型分配器给油口成倍增加,正面右位给油口下预制一,二口合并为一口的螺塞,易改为奇数出油,使用系统配管简单。SSPQ-L2、3、4三种系列的分配器,同样给油口数的外形安装尺寸相同,易于型号变更替换方便。
该系列分配器可以从指示杆的动作直接观察分配器的工作情况,还可通过调整螺钉在规定范围内方便地调整各个给油口的给油量。
|
|
|
| 二、技术参数 |
|
型 号 |
公称压力 |
动作压力 |
出油口数 |
每口每循环给油量ml |
损失量 |
调整螺钉每转一 圈的调整量mL |
重量 |
标准型号 |
原型号 |
MPa |
MPa |
个 |
系列 |
**** |
最小 |
mL |
kg |
1SDPQ-L1 |
DV-31H |
20 |
≤1.5 |
1 |
1 |
1.2 |
0.2 |
0.50 |
0.06 |
0.8 |
2SDPQ-L1 |
DV-32H |
2 |
1.4 |
3SDPQ-L1 |
DV-33H |
3 |
1.8 |
4SDPQ-L1 |
DV-34H |
4 |
2.3 |
1SDPQ-L2 |
DV-41H |
1 |
2 |
2.5 |
0.6 |
0.55 |
0.10 |
1.0 |
2SDPQ-L2 |
DV-42H |
2 |
1.9 |
3SDPQ-L2 |
DV-43H |
3 |
2.7 |
4SDPQ-L2 |
DV-44H |
4 |
3.2 |
1SDPQ-L3 |
DV-51H |
≤1.2 |
1 |
3 |
5.0 |
1.2 |
0.63 |
0.15 |
1.4 |
2SDPQ-L3 |
DV-52H |
2 |
2.4 |
3SDPQ-L3 |
DV-53H |
3 |
3.5 |
4SDPQ-L3 |
DV-54H |
4 |
4.6 |
1SDPQ-L4 |
DV-61H |
1 |
4 |
14.0 |
3.0 |
0.63 |
0.68 |
2.4 |
2SDPQ-L4 |
DV-62H |
2 |
4.2 |
|
| SSPQ-L 系列:(注:损失量是指推动导向活塞需要的流量)。 |
| |
型 号
|
公称压力 |
动作压力 |
出油口数 |
每口每循环给油量ml
|
损失量 |
调整螺钉每转一
圈的调整量mL |
重量 |
标准型号 |
原型号 |
MPa |
MPa |
个 |
系列 |
**** |
最小 |
mL |
kg |
2SSPQ-L1 |
DW-22H |
20 |
≤1.8 |
2 |
1 |
0.6 |
0.15 |
0.17 |
0.04 |
0.5 |
4SSPQ-L1 |
DW-24H |
4 |
0.8 |
6SSPQ-L1 |
DW-26H |
6 |
1.1 |
8SSPQ-L1 |
DW-28H |
8 |
1.4 |
2SSPQ-L2 |
DW-32H |
≤1.5 |
2 |
2 |
1.2 |
0.2 |
0.20 |
0.06 |
|
4SSPQ-L2 |
DW-34H |
4 |
2.4 |
6SSPQ-L2 |
DW-36H |
6 |
3.4 |
8SSPQ-L2 |
DW-38H |
8 |
4.4 |
2SSPQ-L3 |
DW-42H |
2 |
3 |
2.5 |
0.6 |
0.10 |
1.4 |
4SSPQ-L3 |
DW-44H |
4 |
2.4 |
6SSPQ-L3 |
DW-46H |
6 |
3.4 |
8SSPQ-L3 |
DW-48H |
8 |
4.4 |
2SSPQ-L4 |
DW-52H |
≤1.2 |
2 |
4 |
5.0 |
1.2 |
0.15 |
1.4 |
4SSPQ-L4 |
DW-54H |
4 |
2.4 |
6SSPQ-L4 |
DW-56H |
6 |
3.4 |
8SSPQ-L4 |
DW-58H |
8 |
4.4 |
|
| SDPQ-L和SSPQ-L系列分配器使用介质为锥入度265(25℃,150g)1/10mm 润滑脂(NLGI0#~1#)或粘度等级大于N68的润滑油。使用环境温度为-10℃~80℃;介质为润滑油时,可在10MPa 压力下使用。 |
 |
| |
型号 |
L |
B |
H |
L1 |
L2 |
L3 |
L4 |
L5 |
L6 |
L7 |
L8 |
H1 |
H2 |
H3 |
H4 |
d1 |
d2 |
1SDPQ-L1 |
44 |
38 |
104 |
8 |
29 |
11 |
22.5 |
27 |
10 |
24 |
11 |
64 |
11 |
|
39 |
Rc3/8 |
Rc1/4 |
2SDPQ-L1 |
73 |
- |
- |
42 |
40 |
3SDPQ-L1 |
102 |
10 |
82 |
4SDPQ-L1 |
131 |
111 |
1SDPQ-L1 |
50 |
40 |
125 |
9.5 |
31 |
25 |
29 |
30 |
76 |
54 |
48 |
2SDPQ-L1 |
81 |
61 |
3SDPQ-L1 |
112 |
92 |
4SDPQ-L1 |
143 |
123 |
1SDPQ-L1 |
53 |
45 |
138 |
37 |
14 |
28 |
34 |
33 |
14 |
83 |
13 |
57 |
53 |
2SDPQ-L1 |
90 |
70 |
3SDPQ-L1 |
127 |
107 |
4SDPQ-L1 |
164 |
144 |
1SDPQ-L1 |
62 |
57 |
149 |
10 |
46 |
29 |
33 |
45 |
42 |
20 |
89 |
16 |
56 |
2SDPQ-L1 |
108 |
88 |
|
| SDPQ-L系列单向出油的双线分配器,只在下面有出油口,活塞正向、反向排油时都由下出油口供送润滑脂。其形式与尺寸见图和表的规定 |
 |
| |
型号 |
L |
B |
H |
L1 |
L2 |
L3 |
L4 |
L5 |
L6 |
L7 |
L8 |
L9 |
H1 |
H2 |
H3 |
H4 |
H5 |
d1 |
d2 |
d3 |
2SSPQ-L1 |
36 |
40 |
81 |
18 |
17 |
32.5 |
18 |
21 |
6 |
24 |
8 |
18 |
33 |
34 |
54 |
8.5 |
37 |
Rc1/4 |
Rc1/8 |
7 |
4SSPQ-L1 |
53 |
41 |
6SSPQ-L1 |
70 |
58 |
8SSPQ-L1 |
87 |
75 |
2SSPQ-L2 |
44 |
|
120 |
32 |
44 |
22 |
27 |
7 |
30 |
12 |
24 |
47 |
52 |
79 |
11 |
57 |
Rc3/8 |
Rc1/4 |
9 |
4SSPQ-L2 |
76 |
62 |
6SSPQ-L2 |
108 |
94 |
8SSPQ-L2 |
140 |
126 |
2SSPQ-L3 |
44 |
54 |
127 |
30 |
4SSPQ-L3 |
76 |
62 |
6SSPQ-L3 |
108 |
94 |
8SSPQ-L3 |
140 |
126 |
2SSPQ-L4 |
44 |
137 |
30 |
4SSPQ-L4 |
76 |
62 |
6SSPQ-L4 |
108 |
94 |
8SSPQ-L4 |
140 |
126 |
|
| SSPQ-L系列双向出油的双线分配器,在正面和下面都有出油口,活塞正向,反向排油时,正面出油口和下面出油口交替供送润滑脂。其形式与尺寸见图与表的规定。 |
| |
| 三、型号说明 |
 |
| |
| 四、动作说明 |
 |
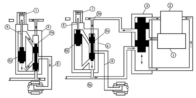
1、润滑泵;2、贮油器;3、换向阀;4、分配器;4a、先导活塞;4b、主活塞
5a、供油管;5b、供油管给油管;7、调整螺钉;8、指示杆 |
双线分配器有两个进油口,分别与5a.5b供油管连接,当其中一条由润滑泵供油时,另一条则向贮油器开放。
如上图所示,由泵压送来的润滑脂,经供油管5a输送至分配器4,进入先导活塞4a上部加压,将先导活塞4a压下,此时下部与供油管5b连通卸荷。随着先导活塞4a的下移,使主活塞4b上腔与先导活塞上腔连通,主活塞下腔与出油口连通,供送的润滑剂进入主活塞上腔,推动主活塞下移,将其下腔的润滑剂经给油管6压送到润滑点,完成第一周期的给油动作。
切换至供油管5b供油开始第二个周期的给油动作,分配器活塞按相同的顺序反向进行前述动作。
分配器每口给油口由主活塞4b的直径和行程确定,通过调节调整螺钉7,改变主活塞4b的行程,可实现规定范围的油量调节。
SSPQ-L系列分配器动作原理同上,供油管5a、5b分别供油一次其下部和正面给油口分别排油一次。 |
| |
| 五、使用说明 |
1、必须在规定的环境下使用规定的介质。
2、分配器的两个进油口分别与两条供油管连接,且两侧是贯通的,某一侧的进油口不使用时应堵上螺塞。不使用的给油口也应堵上螺塞(SDPQ 系列)。
3、在灰尘大、潮湿,环境恶劣的场合使用,应配防护罩。
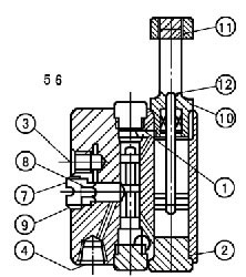
4、给油量的调整,旋动限位器(10)上的调整螺丝(11)可以根据润滑点的实际需要在****和最小给油量的范围内调整给油量。调整应在指示杆(12)缩回去的状态下进行,调整完毕应将锁紧螺丝拧紧。
5、给油口数若为奇数,应将螺堵(8)拧出来堵在给油口(3)上,这样给油口(3)和(4)连通,活塞正反动作均从给油口(4)出油。
6、双线分配器在系统中优先采用并联安装法,供油管与分配器联接在左边或右边均可;其次采用串联安装法,****串联个数不允许超过三个,在特定的场合也可并串组合安装。
7、与分配器接触的表面应光滑平整,安装螺栓不宜拧得过紧,以免变形影响正常动作。
8、分配器活塞二端螺塞无故不许拆卸,如泄漏应拧紧或更换新的密封垫圈。
|
|
六、常见故障及排除方法
1、分配器不动作。
检查供油管有否压力油输送,润滑点是否阻塞,给油管是否被压扁;分配器内是否进入杂质致使活塞孔拉毛等。查明后排除即可。
2、限位器体指示杆处漏油。
拆下限位器更换新的油封,可能是油封库存或使用时间过长老化或超过规定的使用环境温度,查明后更换。
七、订货说明
1、分配器安装使用环境温度> 80℃的必须在订货合同中注明,以便供货时使用耐高温油封。
2、SSPQ(DW)型分配器对应出口均需合并时,订货时在SSPQ 后加注下标即SSPQ1 或DW- ※※ H;不合并时最后的“H”不带。
|
| |